ЖК Стрийська, 45 (перша лінія)
- Планування
- Опис об’єкту
- Галерея
- Розташування
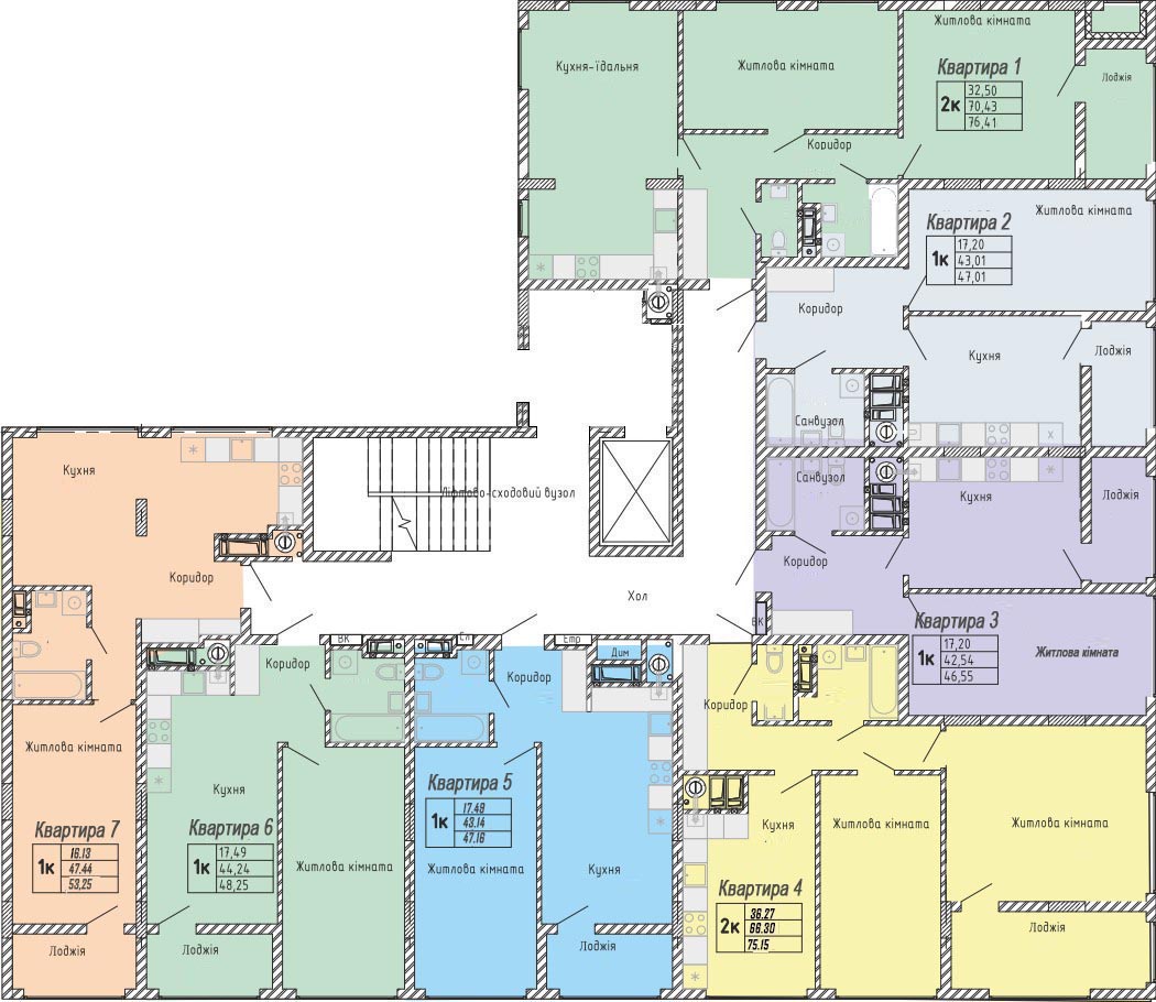
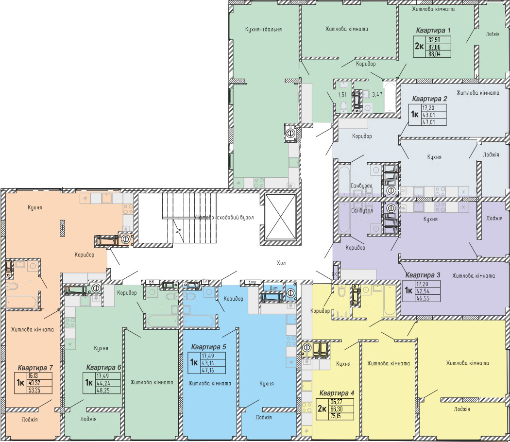
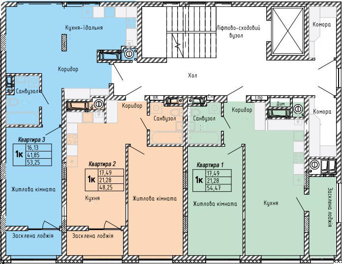
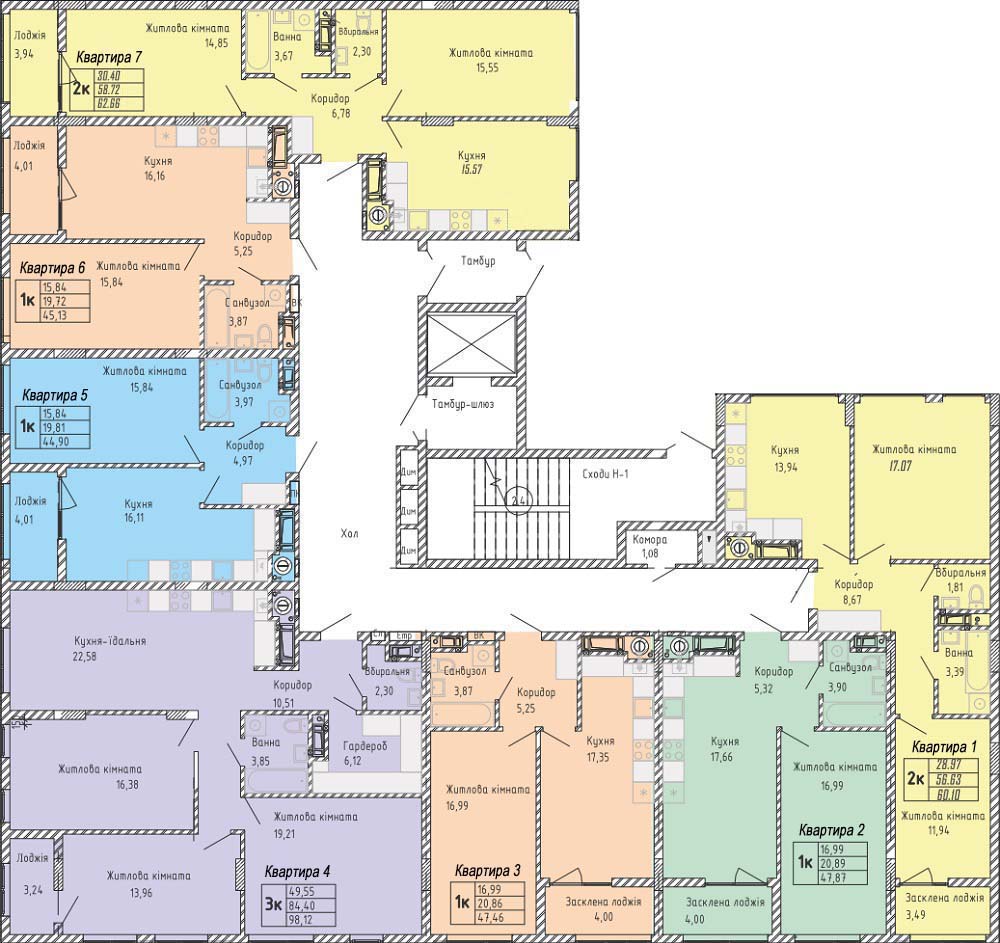
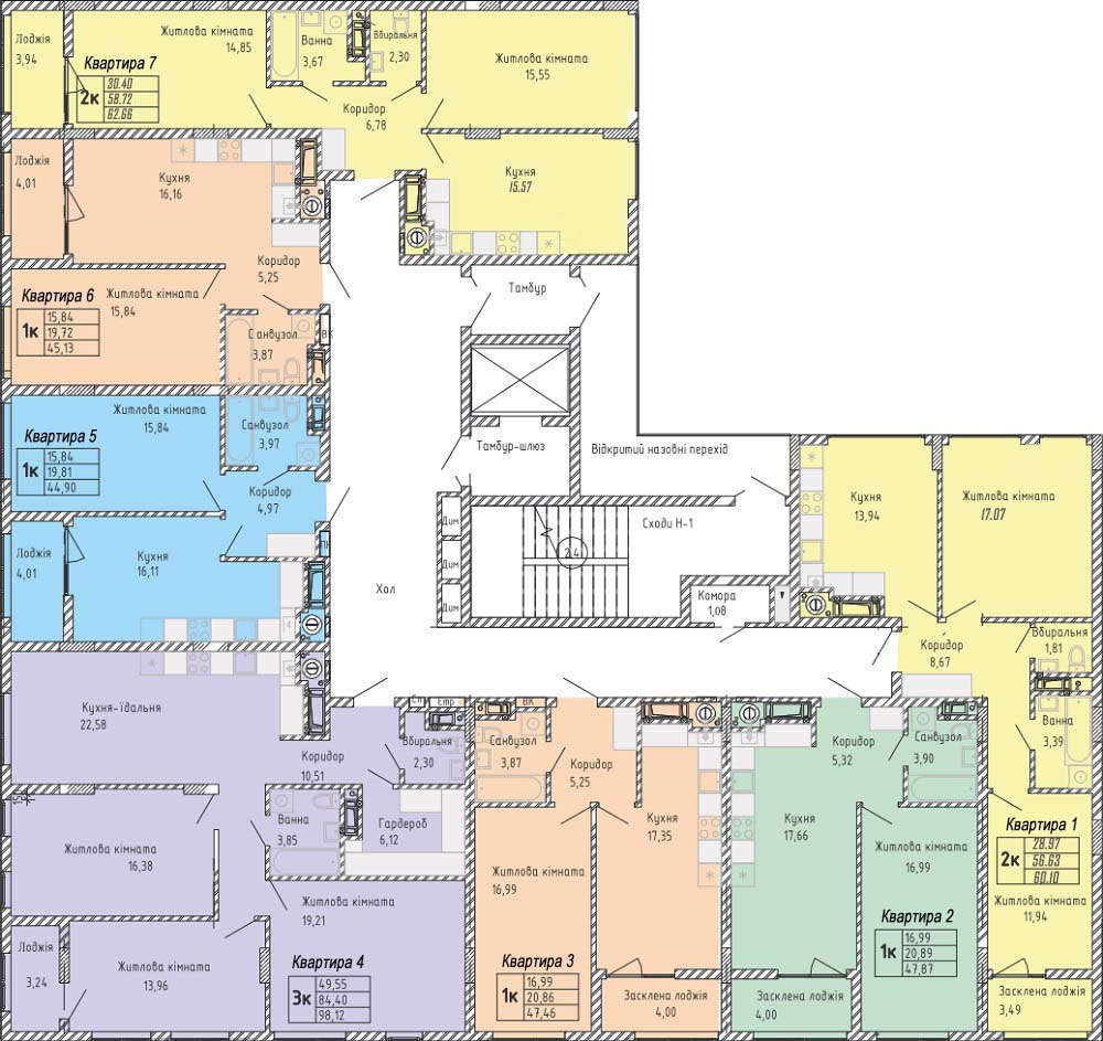
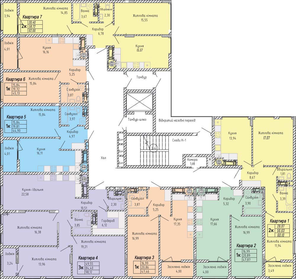
1. Наведіть курсор на будинок та виберіть секцію.
2. Після вибору секції виберіть поверх. Виберіть квартиру на плані, натисніть для збільшення.
3. Детальніше про будівництво ви можете дізнатись на сторінці "Будівництво".











Житловий комплекс на вулиці Стрийській, 45 (Перша лінія)
Торгова марка «Галжитлобуд» продовжує будувати сучасний житловий комплекс на перехресті вулиць Стрийська-Наукова (перша лінія) у Львові.
Паркова зона
Поблизу кварталу є парк “Бондарівка”, площею 5,8 га з невеличким озером.
Лікувальні заклади
Стоматологічна клініка RIKOTA, вул. Стрийська, 45ж;
Аптека «3і», вул. Стрийська, 45ж;
Медична лабораторія «Сінево», вул. Стрийська, 45а.
Торгівельні комплекси
Магазин ТМ «Рукавичка», вул. Стрийська, 45ж
супермаркет “Барвінок”, вул. Стрийська, 51
супермаркет “Арсен”, вул. Кн.Ольги, 120
ТЦ “ВАМ” (супермаркет “Сільпо” та інші магазини), вул. Наукова, 35а;
Універмаг «Львів» (Новий ЦУМ), вул. Кн. Ольги, 106;
Ринок «Провесінь», вул. Кн. Ольги, 112;
ТЦ “King Cross Leopolis”, вул. Стрийська, 30, с. Сокільники;
гуртовий ринок "Шувар”, вул. Хуторівка 4б;
торговий комплекс Victoria Gardens, вул. Кульпарківська, 226а.
Навчальні заклади
Дитячий садок Kids Rio, вул.Стрийська, 45ж
дитячий садок №70, вул. М. Максимовича, 2;
дитячий садок №155, вул. Наукова, 32;
дитячий садок №165, вул. І. Пулюя, 27
дитячий садок №155, вул. Наукова, 32;
СЗШ №32, вул. Гашека, 13;
СЗШ №86, вул. Скорини, 34;
СЗШ №32, вул. Гашека, 13;
СЗШ №2, вул. В. Великого, 55а;
технологічний коледж НУ “Львівська політехніка”, вул. Хуторівка, 15;
львівська духовна семінарія, вул. Хуторівка, 35.