Новобудови Львова. Купити квартиру на вулиці Спортивна за приємною ціною. Продаж квартир в житловому комплексі від Галжитлобуд.
slide

ЖК вул. Стрийська 45
(друга лінія)

Львів, вул. Стрийська, 45
Планована здача: IV квартал 2024 року
від ПРОДАНО
  • Планування
  • Опис об’єкту
  • Галерея
  • Розташування
Записатись на огляд

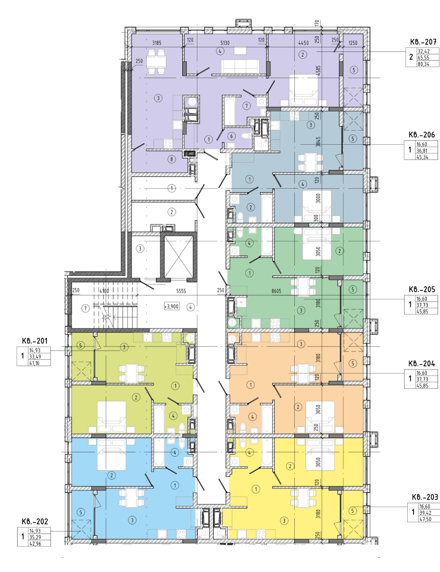
1. Наведіть курсор на будинок та виберіть секцію.
2. Після вибору секції виберіть поверх. Виберіть квартиру на плані, натисніть для збільшення.
3. Детальніше про будівництво ви можете дізнатись на сторінці "Будівництво".




Новий житловий будинок на Стрийській,45 біля ЖК "Леви Міста"

Комфортний 6-поверховий будинок на дві секції. В будинку планується розміщення приватного дитячого садочка. Поблизу паркова зона з озером. Поруч великий торгово-офісний центр, магазини, кафе і все необхідне для Вашого комфортного життя.

Стрийська, 45

Потрібна консультація?

Наш менеджер зателефонує Вам протягом 15 хвилин та відповість на усі Ваші запитання

-
Ваш запит успішно надіслано! Очікуйте на дзвінок нашого менеджера