Однокімнатні квартири в новобудовах
- Планування
- Опис об’єкту
- Галерея
- Розташування
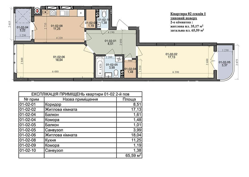
1. Наведіть курсор на будинок та виберіть секцію.
2. Після вибору секції виберіть поверх. Виберіть квартиру на плані, натисніть для збільшення.
3. Детальніше про будівництво ви можете дізнатись на сторінці "Будівництво".








Житловий комплекс на Трускавецькій
ТМ «Галжитлобуд» будує новий багатоповерховий житловий комплекс в селі Сокільники Пустомитівського району Львівської області (межа міста Львова, вулиця Трускавецька).
На ділянці наші фахівці запроектували дев’ять будинків різної поверховості із незалежною інженерною інфраструктурою. У частині житлових будинків для мешканців кварталу передбачено вбудовані нежитлові приміщення (торгові, офісні), а під будинками – підземний паркінг з окремими виїздами та виходами. Захід у будинки буде зі сторони внутрішнього двору та по периметру, а в громадські приміщення – зі сторони зовнішнього периметра комплексу.
Окрім цього, на території кварталу запроектовано вбудований дитячий садочок, який буде мати свої ігрові майданчики.
Згідно з рішеннями містобудівного розрахунку для забезпечення потреб жильців кварталу в проекті передбачений майданчик для відпочинку дорослого населення та майданчик для занять фізкультурою. У будівництві буде використано екологічно безпечні оздоблювальні та будівельні матеріали.
Житловий комплекс плануємо облаштувати окремою трансформаторною підстанцією. Основні заїзди на територію житлового кварталу передбачаються з вул. Трускавецької та вул. Проектованої. Вільні від забудови і замощення ділянки передбачено максимально озеленити.
Обирайте квартиру своєї мрії від надійного забудовника Торгової марки «Галжитлобуд».
Інформація незабаром з'явиться
